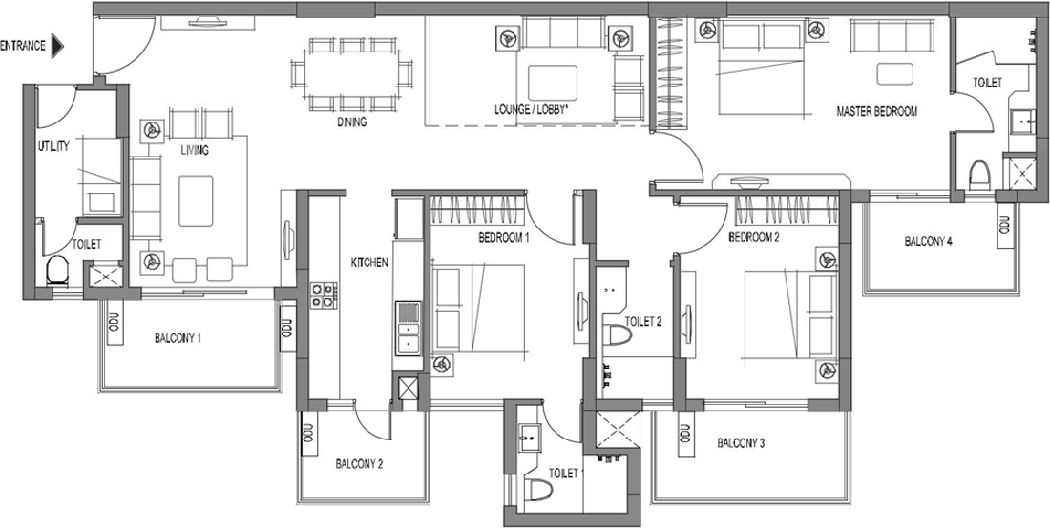
Emaar Palm Premier Sector-77 Gurgaon | Amenities, Payment Plan, Price